Save
Ask
Tour
Hide
$4,875,000
63 Days On Site
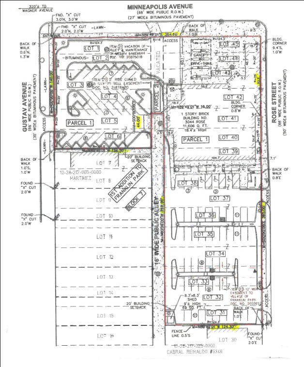
3044 Rose StreetFranklin Park, IL 60131
For Sale|Land|Active
County:
Cook
Listing Courtesy of MRED as distributed by MLS Grid of Land Partners, LLC
Due to the health concerns created by Coronavirus we are offering personal 1-1 online video walkthough tours where possible.

Save
Ask
Tour
Hide
The Village of Franklin Park is open to several ideas for the redevelopment of this site, including commercial, medical, or a six-story apartment building. Property is walkable to downtown Franklin Park, where there are many stores and restaurants. Conveniently located near the METRA station, which will get you to downtown Chicago in 25 minutes. This is a great redevelopment opportunity for any developer. Call listing broker for more information. Marketing brochure included as additional information.
Save
Ask
Tour
Hide
Listing Snapshot
Price
$4,875,000
Days On Site
63 Days
Bedrooms
N/A
Inside Area (SqFt)
N/A
Total Baths
N/A
Full Baths
N/A
Partial Baths
N/A
Lot Size
1.67 Acres
Year Built
N/A
MLS® Number
12595362
Status
Active
Property Tax
$93,271.63
HOA/Condo/Coop Fees
N/A
Sq Ft Source
N/A
Friends & Family
Recent Activity
| 4 weeks ago | Listing updated with changes from the MLS® | |
| 2 months ago | Status changed to Active | |
| 2 months ago | Listing first seen on site |
General Features
Acres
1.67
Additional Property Use
Commercial
Utilities
Natural Gas AvailableSewer ConnectedWater Available
Zoning
OTHER
Save
Ask
Tour
Hide
Exterior Features
Frontage
300
Community Features
MLS Area
Franklin Park
Roads
Asphalt
School District
Leyden High School
Township
Leyden
Schools
School District
Leyden High School
Elementary School
Passow Elementary School
Middle School
Hester Junior High School
High School
Leyden High School
Listing Courtesy of MRED as distributed by MLS Grid of Land Partners, LLC
Based on information submitted to the MLS GRID as of 2026-05-21 05:15 AM UTC. All data is obtained from various sources and may not have been verified by broker or MLS GRID. Supplied Open House Information is subject to change without notice. All information should be independently reviewed and verified for accuracy. Properties may or may not be listed by the office/agent presenting the information.
Last checked: 2026-05-21 05:15 AM UTC
MRED DMCA Copyright Information Copyright © 2026 Midwest Real Estate Data LLC. All rights reserved.
Based on information submitted to the MLS GRID as of 2026-05-21 05:15 AM UTC. All data is obtained from various sources and may not have been verified by broker or MLS GRID. Supplied Open House Information is subject to change without notice. All information should be independently reviewed and verified for accuracy. Properties may or may not be listed by the office/agent presenting the information.
Last checked: 2026-05-21 05:15 AM UTC
MRED DMCA Copyright Information Copyright © 2026 Midwest Real Estate Data LLC. All rights reserved.
Neighborhood & Commute
Source: Walkscore
Disclosure: Community information and market data powered by Constellation Data Labs. Information is deemed reliable but not guaranteed.
Save
Ask
Tour
Hide



